Tipología:

Vivienda Unifamiliar

Localización:

Zaragoza, Zaragoza

Año:

2022

Vivienda Vega

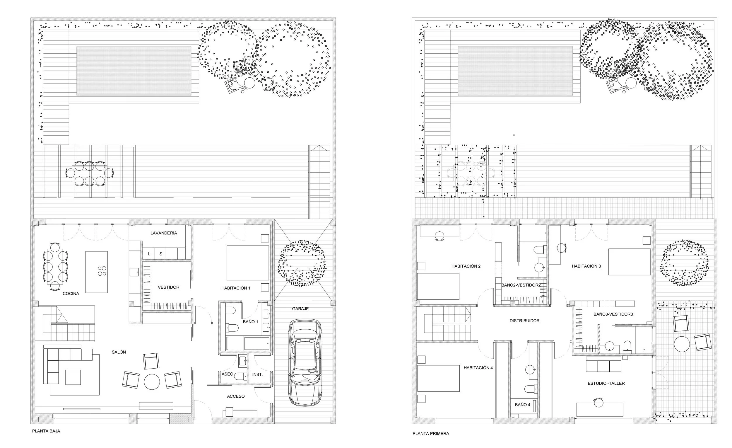
La vivienda se sitúa en una parcela de 329 m² inserta en la trama urbana consolidada en el barrio de Valdefierro en Zaragoza. Afortunadamente, la parcela tiene una orientación sureste hacia el interior de la misma. La normativa municipal obliga a mantener las alineaciones y permite edificar hasta el 50%. Este proyecto se destaca por su arquitectura y diseño innovador, alineado con las mejores tendencias en arquitectura actuales, y también incorpora principios de sostenibilidad y estilo.

El cliente no quería una casa excesivamente grande y deseaba incorporar una zona exterior cubierta en la planta primera, ligada a un estudio-taller. La estrategia para cumplir con los deseos del cliente fue dejar una de las cuatro crujías perpendiculares a la fachada libre y alojar allí, en planta baja, un espacio para el coche abierto al interior de la parcela, y sobre este, la terraza cubierta como espacio exterior, ligado al estudio-taller y manifestándose en la fachada con un gran hueco.

obra construccion vivienda unifamiliar vega zaragoza

En planta baja se distribuyen las zonas de día, salón-comedor-cocina como un único espacio con una discreta ventana alargada elevada para preservar la intimidad hacia la calle y una gran apertura al jardín interior orientado a sureste, permitiendo la ventilación cruzada. La escalera de acceso a la planta primera se incorpora a este espacio y se ilumina cenitalmente. En la planta baja se ubica también la habitación principal con un amplio vestidor y baño propio. En la planta primera se encuentran las dos habitaciones “gemelas” de las hijas que vuelcan sobre el jardín. En la fachada se ubica una habitación de invitados y el estudio-taller. La fachada a la calle es discreta y sin vuelos sobre la misma. En la interior, se remarcan los huecos mediante un balcón corrido de escaso metro y medio para impedir la entrada de sol en verano.

La estructura es metálica y los cerramientos de termarcilla de 19 cm con aislamiento de corcho revestido a modo SATE. En cuanto a las instalaciones, se colocan placas solares fotovoltaicas en la cubierta que alimentan la instalación de aerotermia ligada al suelo radiante. También se instala un recuperador de calor para evitar pérdidas térmicas.

obra construccion vivienda unifamiliar vega zaragoza
obra construccion vivienda unifamiliar vega zaragoza

Este proyecto refleja el compromiso del estudio de arquitectura y diseño con la sostenibilidad y estilo, asegurando que cada detalle esté en línea con las mejores prácticas de interiorismo y diseño.

Anterior
Anterior

Don jaime 39

Siguiente
Siguiente

Dadá